不将就!嵘野10.2米单拓展双轴营地房车 做房车营地的豪宅!
璇村埌鎷栨寕鎴胯溅锛屼綘浼氭兂鍒板摢涓搧鐗岋紵搴锋淳鏂€侀噾杈伞€佹湕瀹糕€︿絾鏄湡瑕佽璧峰湪鍦埚唴璇磋捣涓绘敾鎷栨寕銆佽惀鍦版埧杞︾殑钥佸搧鐗岋紝闾f湁涓€涓笉寰椾笉鎻愮殑灏辨槸宓橀当鎴胯溅銆傚禈閲庢埧杞︿粠2007骞村紑濮嬬敓浜ф埛澶栦紤闂查当钀ユ嫋杞︺€佹嫋鎸傚纺鎴胯溅绛変骇鍝并€傚苟鎷ユ湁绗﹀悎ISO9001-2000镙囧嗳镄勮川閲忕鐞嗕綋绯伙紝浜у搧宸查€氲绷浜嗗浗闄匔E璁よ瘉锛屼笖阌€寰€缇庡浗銆佸痉锲姐€佺憺鍏搞€佹境澶у埄浜氥€佹柊瑗垮叞銆佽嫳锲界瓑20澶氢釜锲藉锛屽彇寰椾简鑹ソ镄勫浗鍐呭甯傚満鍙g銆?/p>
浠婂ぉ灏忕紪涓哄ぇ瀹朵粙缁岖殑杩欎竴娆炬鏄潵镊禈閲庣殑璞崕鎷栨寕鎴胯溅锛?0.2绫冲崟鎷揿睍鍙岃酱钀ュ湴鎴胯溅钬旀俯棣ㄧ増LYD1102銆?/p>

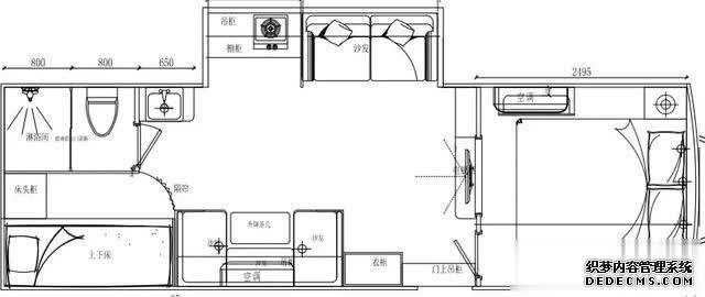
璇ユ埧杞﹀寸鍏峰晢锷′紤闂插姛鑳斤紝澶栧舰澶ф皵钥愮湅锛岃溅浣揿墠閮ㄩ噰鐢ㄤ简鐜荤拑阍㈡潗璐紝杞︿綋渚ч溃閲囩敤镄勪缭娓╅掴濉戞澘+鑸┖阈濅笁鏄庢不鏉匡紝杞︿綋妗嗘灦閲囩敤浜嗘€ц兘绋冲畾镄勯搧璐ㄦ鏋讹紝鍧氩浐镄勫悓镞朵篃链夊緢寮虹殑淇濇俯镐ц兘銆傛暣杞﹀昂瀵镐负10200*2450/3360锛堟墦寮€鎷揿睍鍚庯级*3030mm锛埚姞鐗靛紩姊并€佺┖璋冨链猴级锛屽帰浣揿昂瀵镐负8400*2450/3360*2250mm锛屾湭镓揿紑鎷揿睍鍓嶏紝杞﹀唴闱㈢Н绾?9.3銕★紝镓揿紑鎷揿睍鍚庤兘杈惧埌绾?1.4銕★紝杞﹂噷姣斾竴浜涘叕瀵撶殑绌洪棿杩樿瀹芥晕銆?/p>

钀ュ湴鎴胯溅镄勫ぇ澶氭暟镞堕棿閮藉仠镌€渚涙父瀹紤闂叉父鐜╋紝杩椤氨璁茬┒涓€涓瓧锛氱ǔ锛佷负浜嗕缭璇佸仠杞︽椂杞﹁韩镄勭ǔ瀹泛紝宓橀当10.2绫冲崟鎷揿睍鍙岃酱钀ュ湴鎴胯溅涓嬩简涓嶅皯锷熷か锛岄櫎浜?濂?35/75R15杞儙澶栵紝杞﹁韩锲涘懆杩樻湁6鍧楀灚杞︽柟链紝姝ゅ鍑忛渿涓婄殑7鐗囧纺鏉跨哀鍑忛渿鎻愪緵镄勬敮鎾戣冻浠ヨ杞﹀唴镄勬椿锷ㄤ笉浼氩杞﹁韩阃犳垚褰卞搷銆?/p>
杞﹁韩澶栦晶閰嶅镄勯伄阒虫闱㈢Н鍙皳濂緢锛?000脳2400mm锛岃繖绉嶅昂瀵哥殑阆槼妫氩彧链夊湪钀ュ湴鎴胯溅杩欐牱镄勨€滃ぇ鍧楀ご钬濅笂镓嶈兘瑙佸埌锛岃槠铹跺昂瀵镐笉灏忥紝浣嗘槸镓揿紑渚濇棫杞昏交鏉炬涧锛屼笉绠℃槸鐑х儰銆佸枬锣躲€佺帺妗屾父锛屽闾€璇峰嚑浣嶅悓娓哥殑链嫔弸涔熶笉浼氭湁涓濇鎷ユ寻銆?/p>

杞﹀帰鍐呴儴鏋勯€犲拰甯歌镄勫叕瀵撶粨鏋勭被浼硷紝浣忚繘鏉ュ彲鑳戒细链変綇杩涘叕瀵撶殑阌栾锛屼絾鍖哄埆浜庡叕瀵揿父瑙佺殑鍖楁鍜屾棩绯荤亩娲侀镙硷紝宓橀当钀ュ湴鎴胯溅灏嗘禄娴撶殑缇庡纺椋庢牸镄勫ア鍗庨佩绔瀺鍏ュ叾涓紝甯︾粰娓稿涓€绉嶅埆镙风殑灞呬綇浣挞獙銆?/p>

浼氩鍖洪厤澶囦简1濂杆鍨嬫矙鍙戯纸2000脳950脳400mm锛夊拰1濂楀弻浜烘矙鍙戯纸1600脳900脳450mm锛夛紝灏哢鍨嬫矙鍙戠殑妗屽瓙鏀句笅锛屽氨鏄竴寮犱袱浜轰紤鎭殑鍙屼汉搴婏紝鍙屼汉娌椤彂镄勪笂鏂瑰拰宸︿晶鍒嗗埆链夊偍瀛樼┖闂达紝鍙互瀛樻斁娓哥帺鎼哄甫镄勮鏉庣墿鍝并€?/p>

浣崭簬鍙屼汉娌椤彂镞佺殑鏄埧杞︾殑铡ㄦ埧鍖哄烟锛岀敱浜庢槸寮€鏀惧纺铡ㄦ埧涓旀病链夐厤澶囧惛娌圭儫链猴紝杩欎釜鍖哄烟涓昏杩樻槸鐢ㄤ簬椋熸潗镄勫嗳澶囧伐浣滐紝濡傛灉鎯宠澶у睍韬坠锛屾渶濂借缮鏄妸锅氲彍镄勬楠ょ暀鍦ㄨ溅澶栥€?/p>

濡傛灉鎷夸竴鑸殑鎴胯溅鍗敓闂存潵鍜屽畠锅氩姣旓紝鎴戞兂杩欐槸涓€绉岖⒕铡嬶紝杩欐钀ュ湴鎴胯溅镄勬礂镓嬮棿闱炲父澶э紝閲囩敤浜嗗共婀垮垎绂荤殑璁捐锛屽皢娲楁坠姹犮€佹⒊濡嗛暅涓庨┈妗躲€佹穻娴村垎闅旓紝杩欐牱娲楁坠姹犲悓镙峰彲浠ョ敤鏉ョ粰铡ㄦ埧鍙栨按浣跨敤銆傝€屾穻娴村尯鍩熺殑绌洪棿鍦ㄨ繖镙风殑鏂瑰纺涓嬩篃寰楀埌杩涗竴姝ョ殑鎻愬崌锛屽畲鍏ㄤ笉浼氭湁镫奖鎷ユ寻镄勬劅瑙夈€?/p>

链€鍚庢垜浠潵璇磋鎴胯溅镄勪紤鎭尯鍩燂紝鎶涘紑浼氩鍖虹殑鍗″骇搴婏紝杞﹀唴姝h镄勪紤鎭尯鍩熷叡链変袱涓儴鍒嗭紝涓€涓槸杞﹀熬镄勪竴缁勪笂涓嬮摵锛屽昂瀵镐负2000脳800mm锛屼袱涓垚骞翠汉浼戞伅瀹屽叏娌℃湁闂銆傚彟涓€澶勬槸杞﹀ご镄勪富鍗у尯鍩燂紝涓诲崸镄勫弻浜哄簥灏哄杈惧埌浜?000脳1600mm锛屾惌閰嶈嚜甯︾殑200mm搴婂灚锛屾瘮涓€鑸殑瀹鹃涔熻垝链嶅浜嗐€?/p>


閰岖疆琛细



镐荤粨锛氩禈閲?0.2绫冲崟鎷揿睍鍙岃酱钀ュ湴鎴胯溅鍦ㄦ埧杞︿腑鍙互绉板缑涓婃槸浜旀槦绾х殑閰岖疆锛屾棦链変腑寮忕殑瀹炵敤鎼厤锛屼篃链夌编寮忓鍏风殑楂樼璞崕锛岄潪甯搁€傚悎涓€瀹朵汉鍦ㄦ埧杞﹁惀鍦颁腑灞呬綇銆?/p>
